1/3



神奈川県 藤沢市
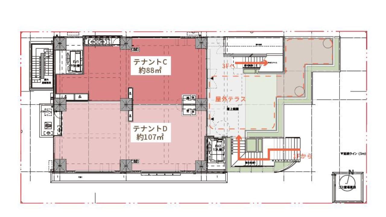
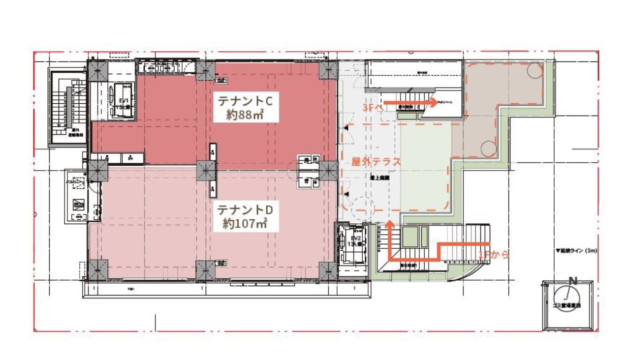
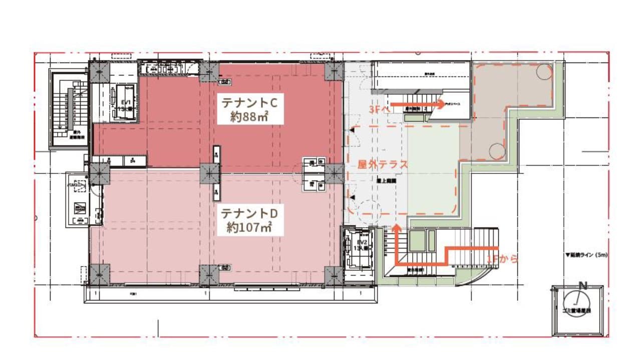
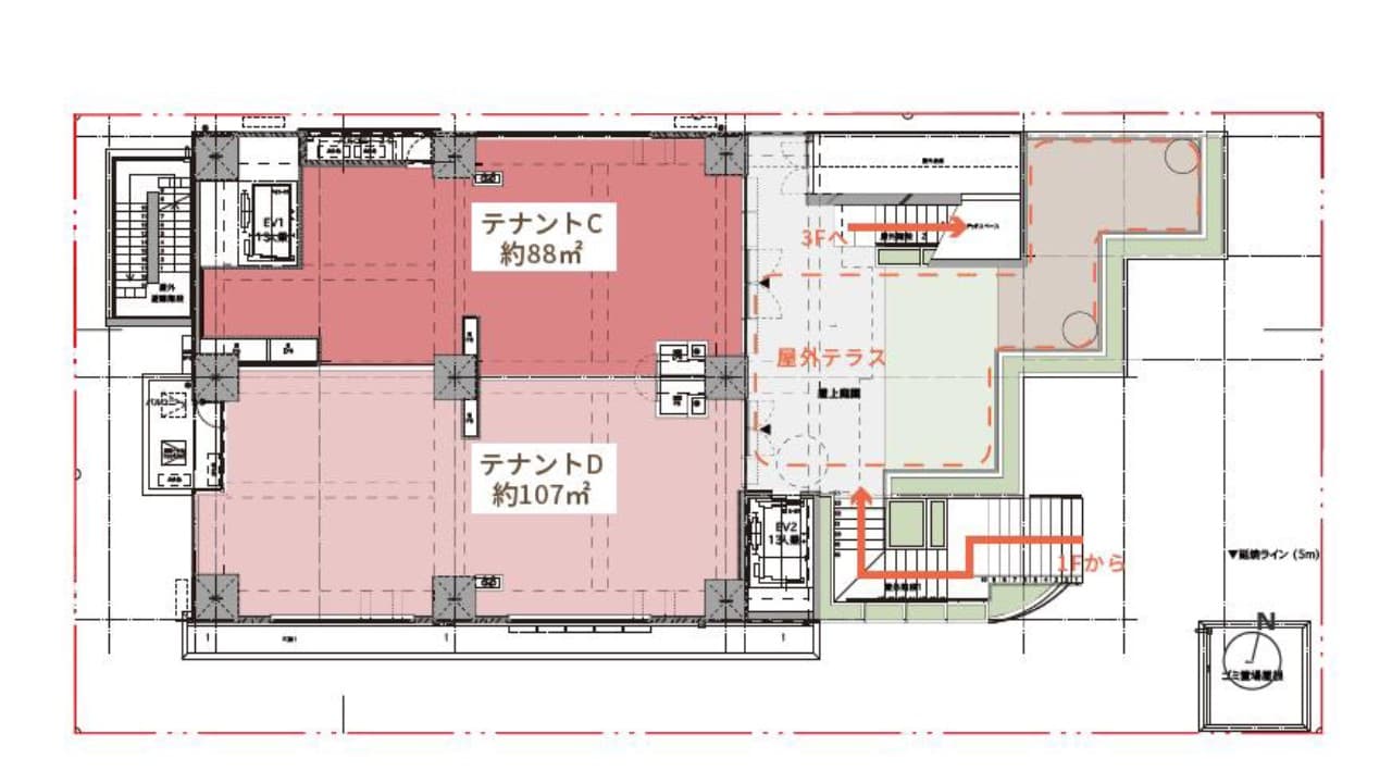
107.47㎡ (32.5坪)
図面・フロアマップ

藤沢市湘南台PJ_2F-D_飲食スペックありで隣の区画「2F-C」との統合可能です。(32.5坪)
物販
食品・生鮮・惣菜・グロサリー
食物販(個包装、贈答菓子等)
食物販(切り売り、量り売り等)
軽飲食(カフェ等)
重飲食(レストラン等)
理美容・サロン
病院・クリニック・薬局
スポーツジム・フィットネス
学習塾・子供向け教室
語学・資格・カルチャー教室
アミューズメント
サービス提供
展示・ギャラリー
政府・自治体・公共団体

神奈川県藤沢市
藤沢市湘南台プロジェクト(仮称)2027年4月頃開業予定の湘南台1丁目に建設中の新築物件。 湘南台駅より約5分、「湘南台公園」の目の前の物件です。 14階建ての1階から3階が商業フロア(4階以上賃貸マンション)で、2階は飲食店・物販店・サービス店を想定しています。